VZT POTRUBIE KRUHOVÉ

Štandardne vyrábané dimenzie

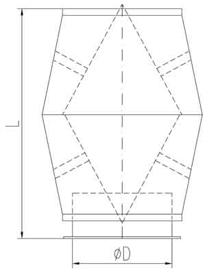
RÚRA KRUHOVÁOBLÚK SEGMENTOVÝ SEDEMDIELNÝ
D = 100 až 5000 mmD = 100 až 2000 mm
L = podľa požiadavkyR = 1D; 1,5D; 2D; 3D
Značenie RU D/La = 15° až 90° , v násob. 15°
Značenie OB D/R/a°


OBLÚK SEGMENTOVÝ ŠTVORDIELNÝPRECHOD KRUH - KRUH
D = 100 až 2000 mmC = 100 až 5000 mm
R = 1D; 1,5D; 2D; 3DD = 100 až 5000 mm
a = 15° až 90° , v násob. 30°L = 200 mm - podľa pož.
Značenie OB 4diel D/R/a°Značenie PR C/D/L


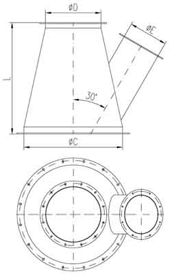
PRECHOD ŠTVORHRAN - KRUHROZBOČKA
A = 100 až 5000 mmC = 100 až 2000 mm
B = 100 až 5000 mmD = 100 až 2000 mm
D = 100 až 5000 mmE = 100 až 2000 mm
L = 200 mm - podľa pož.L = 500 mm - podľa pož.
Značenie PR AxB/D/LZnačenie RO C/D/E/L/30°


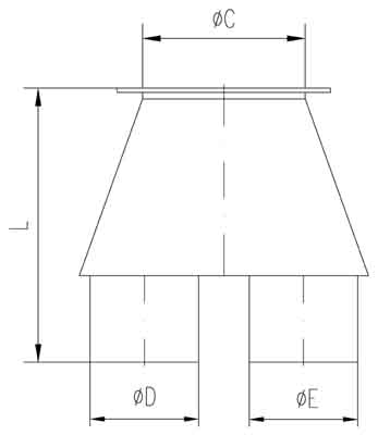
ROZBOČKA VALCOVÁDVOJITÁ ROZBOČKA
C = 100 až 2000 mmC = 100 až 2000 mm
D = 100 až 2000 mmD = 100 až 2000 mm
E = 100 až 2000 mmE = 100 až 2000 mm
L = 500 mm - podľa pož.F = 100 až 2000 mm
Značenie ROV C/D/E/L/30°L = 500 mm - podľa pož.
Značenie RO2 C/D/E/F/L/30°


NOHAVICOVÁ ROZBOČKAT - ROZBOČKA
C = 100 až 2000 mmC = 100 až 2000 mm
D = 100 až 2000 mmD = 100 až 2000 mm
L = 500 mm - podľa pož.L = 500 mm - podľa pož.
Značenie RONO C/D/L/30°Značenie ROT C/D/L/30°


T - ROZBOČKA NÁBEHOVÁKOMPENZÁTOR
C = 100 až 2000 mmD = 100 až 5000 mm
D = 100 až 2000 mmL = 200 mm - podľa pož.
L = 500 mm - podľa pož.Značenie KOM 1 (2,3) D/L
Značenie NROT C/D/LPozn. počet vlnovcov sa udáva číslom


ŠUPATKO RUČNÉTLMIACA VLOŽKA PANCIEROVÁ
D = 100 až 500 mmD = 100 až 5000 mm
L = 110 mm - podľa pož.L = 200 - podľa pož.
Značenie SUP D/LZnačenie TV D/L


KLAPKA ŠKRTIACA RUČNÁVÝFUKOVÁ HLAVICA
D = 100 až 2000 mmD = 160 až 2000 mm
L = 120 až 350 mmL = 380 až 3640 mm
Značenie KR (KS) D/LZnačenie VH D
Pozn. KS - Klapka strojná tesná


TLMIČ HLUKUSACÍ ZVON
D = 200 až 800 mmC = 160 až 500 mm
L = 500 mmD = 110 až 250 mm
Značenie TH D/LE = 110 - podľa pož.
Značenie ZV C/D/E/L